Char B1 bis

Char B1 bis
Франция
Тяжелый по массе пехотный танк
|
масса |
31,5-32 т |
|
вооружение |
75-мм орудие 47-мм орудие 1 пулемет |
|
экипаж |
4 чел. |
|
мощность силовой установки |
307 л.с. |
|
проект |
1936г., Renault, APX |
|
выпускался |
1937-1940гг., Renault, FCM, FAMH, Schneider, AMX 366 шт. |
Основная статья:
Французское танкостроение 1930-1938гг.
Сухопутные
дредноуты в железе и в грёзах
В начале 1935г. французы сделали ставку на
пехотный танк В1 с максимальной толщиной брони 40 мм, который должен был стать своего
рода главным французским танком. Char B1 (Рис.1)
имел определённый запас по модернизации, и это весьма пригодилось, поскольку к
середине тридцатых появились противотанковые орудия, которые успешно пробивали
броню толщиной 40 мм - например, сами французы разработали подобное орудие -
47-мм пушку SA 35.

Рис.1 - Char B1.
В 1936 году были начаты работы по
модернизации Char
B1. Поскольку серьёзные изменения в конструкции B1 могли негативно
сказаться на темпах производства, переделки танка были сведены к минимуму, во
многом они, как бы, пересекались с концепцией варианта Char B2. Правда, от установки в башне длинноствольной 75-мм пушки было
решено отказаться (трехместная башня под 75-мм орудие ставилась тогда только на
тяжелые танки FCM 2C), а бронирование модернизированной машины по сравнению с Char B2 даже усиливалось. Толщину лобового листа
корпуса конструкторы увеличили до 60 мм, такую же защиту получили и борта (по
другим сведениям, борта корпуса получали броню толщиной 55 мм), а броня кормы
была усилена до 55 мм. Толщина брони крыши корпуса
варьировала от 20 до 56 мм, днище – 20 мм. Такая толщина брони делала танк
практически неуязвимым для огня имевшейся на тот момент противотанковой
артиллерии. Танк собирался из литых деталей. Модернизированный вариант получил
обозначение Char
B1 bis. (Рис.2)

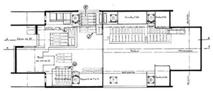
Рис.2 – Внутренняя компоновка танка В1 bis.
Усиление бронирования танка повлекло увеличение его массы до 31,5 т или 32 т. Для компенсации массы танка пришлось устанавливать 307-сильный 6-клапанный двигатель Renault, количество оборотов двигателя достигало 1600 об/мин, при этом скорость танка составляла 28 км/ч. Двигатель расходовал 4 литра горючего на километр пути, поэтому, несмотря на запас топлива 400 литров, запас хода танка оценивался в 180-200 км. Для удобства управления танком машина снабжалась гидродинамической передачей Naeder, которая выполнялась в блоке с пятискоростной механической коробкой передач. Распределение скоростей на коробке передач выглядело следующим образом: 1-я передача – 2,1 км/ч; 2-я передача – 6,9 км/ч; 3-я передача – 9,6 км/ч; 4-я передача – 17 км/ч; 5-я передача – 28 км/ч. В качестве механизма поворота применялся двойной дифференциал. Такая схема трансмиссии обеспечивала танку поворот по расчетным радиусам определенной величины, что давало возможность довольно точно наводить 75-мм орудие, располагавшееся в корпусе.
В связи с увеличением массы пришлось модернизировать и ходовую часть. Ширина трака (гусеница включала 53 трака) выросла с 460 до 500 мм, чуть увеличился диаметр ленивца, а от поддерживающих роликов конструкторы отказались, заменив их на конструкцию рельсового типа. В целом ходовая часть состояла из 16 опорных катков (на сторону), направляющего и ведущего колес. 12 опорных катков были сблокированы в три тележки по четыре катка в каждой, подвешенные на спиральных и листовых рессорах. Три катка собирались в самостоятельную тележку, расположенную впереди, а один каток, находившийся сзади, имел свою собственную рессору. При всей сложности такая конструкция ходовой части обеспечивала танку довольно мягкий ход.
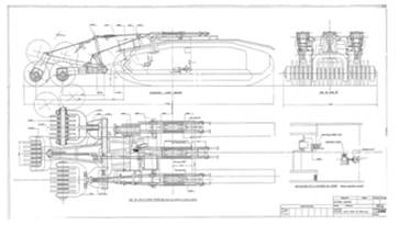
Другие важные изменения были связаны с заменой башенной 47-мм пушки SA-34 на более длинную и мощную – 47-мм SA35 c длиной ствола 32 калибра (указывают также, что длина ствола 47-мм SA35 на танке B1bis составляла 27,6 калибра - SA35/L28). Бронебойный боеприпас AP 1935 массой 1,62 кг с начальной скоростью от 660 до 680 м/с на 400 м пробивал броню толщиной 40 мм под углом 30°. Углы вертикального наведения орудия – от -18° до +18°. Боезапас к 47-мм орудию составил 50 выстрелов. (Рис.3)

Рис.3 – 47-мм пушка SA35, устанавливавшаяся в танках B1bis.
Под это орудие конструкторы фирмы Atelier de Puteaux (APX) подготовили
модифицированную башню, получившую обозначение APX 4. По своей конструкции она
в целом повторяла APX 1, но при этом толщина её стенок выросла до 55 мм
(некоторые указывают толщину стенок башни APX 4 – 57 мм, а другие – 46 мм). Также
башня получила более удачные по конструкции смотровые приборы и переработанные
бронировки пулемётной (в башне устанавливался 7,5-мм пулемет Reibel) и
орудийной масок. Башня вращалась с помощью электрического привода. (Рис.4)




Рис.4 – Башня APX 4.
На танки B1 bis ставилась и новая модель 75-мм пушки - SA-35. Орудие SA 35
стреляло укороченными версиями снарядов классической 75-мм модели 1897 года. Было
доступно два типа снарядов. Один - Obus de rupture Mle.1910M (англ. Rupture Shell model 1910M), который
представлял собой бронебойно-фугасный снаряд. Снаряд имел вес 6,4 кг и содержал
90 граммов взрывчатого вещества. Стрельба велась с начальной скоростью 220 м/с.
Он обеспечивал бронепробиваемость 40 мм при угле падения 30° на дистанции 400 метров,
хотя в основном предназначался для использования против укреплений. Другим
снарядом был Obus Explosif Mle. 1915 г. (англ. Explosive Shell model 1915),
осколочно-фугасный снаряд. Он весил 5,55 кг и содержал 740 граммов взрывчатого
вещества. Стрельба велась с начальной скоростью 220 м/с.
Углы вертикального наведения75-мм пушки
колебались в пределах от-15° до +25°, горизонтальное наведение осуществлялось
поворотом всего танка. Особенностью этого орудия стало наличие вентилятора,
отсасывавшего после выстрела пороховые газы из канала ствола. (Рис.5)

Рис.5 - 75-мм пушка SA 35 в корпусе танка B1 bis.
Стреляные гильзы от обоих орудий могли удаляться из боевого отделения через люк в днище корпуса. Боезапас 75-мм выстрелов сократился до 74 снарядов (на В1 боезапас к 75-мм орудию составлял 87 снарядов). (Рис.6)

Рис.6 – Схема размещения боезапаса.






Рис.7
– Проекции танка B1 bis.
Габариты
танка B1 bis: длина – 6370 мм, ширина – 2500 мм, высота – 2790 мм, клиренс –
450 мм.
Расположение экипажа (4 чел.) внутри танка
выглядело следующим образом. Водитель располагался в бронированной рубке ближе к левому борту
корпуса, управлял машиной при помощи штурвала с гидроусилителем, кроме того, он
стрелял из 75-мм орудия. Рабочее место заряжающего 75-мм орудия (он же наводчик
этой пушки по вертикали) находилось позади этой пушки и приборами наблюдения не
оборудовалось. Кроме того, в обязанности заряжающего входила подача 47-мм
выстрелов из боеукладки, расположенной в корпусе, в башню командиру танка. Командир
танка находился в башне и помимо руководства боем выполнял функции наводчика и
заряжающего 47-мм пушки. Радист размещался в корпусе
позади водителя, не имел приборов наблюдения - единственный член экипажа, не
выполнявший по совместительству иных обязанностей, кроме обслуживания
радиостанции (ER29, ER51, ER55). Командир танка
находился в башне и помимо руководства боем выполнял функции наводчика и
заряжающего 47-мм пушки. (Рис.8)




Рис.8 – Внутренняя
компоновка танка В1 bis.
Позади боевого отделения размещалось МТО. В моторно-трансмиссионном отделении слева от
двигателя были установлены радиатор системы охлаждения, вентиляторы и 100-л
топливный бак. Жалюзи воздухопритока к радиатору были выполнены в левом борту
корпуса, и объективно ослабляли защиту танка. Справа от двигателя были
смонтированы еще два топливных бака емкостью 200 и 100 л. Между этими баками и
двигателем имелся проход, ведший к двери в огнеупорной моторной перегородке. Наличие
прохода облегчало членам экипажа ремонт и обслуживание двигателя. Все топливные
баки конструктивно выполнялись самозатягивающимися. (Рис.9).

Рис.9 – Поперечное сечение танка в районе МТО.
B1 bis мог преодолеть следующие
препятствия: угол подъема 40°, высота стенки 0,93 м, ширина рва 2,74 м, глубина
брода 1,47 м.
Первый заказ на производство Char B1 bis
поступил 8 октября 1936 года. Курировал производство танков В1 bis Лавирот. Согласно контракту №
1891 D/P (по нему же завод FCM построил последние пять Char B1) предполагалось построить
35 танков с номерами 201–235 - именно столько машин полагалось иметь по штату в
тяжелом танковом батальоне. Две машины первого заказа строили на заводе FCM,
остальные – на Renault. Первый Char B1 bis с серийным номером 201
и именем собственным France покинул сборочный цех в апреле 1937 года.
Рассчитывали, что заказ будет выполнен за полгода, но выпуск всей партии
растянулся почти на год: последняя машина по контракту №1891 D/P была сдана 2
марта 1938 года. Последний танк первой серии с номером 235 получил имя
собственное Toulon. (Рис.10)

Рис.10 – Сборка танков B1
bis.
Начиная с 1936 года, танки B1 bis поступали на укомплектование четырех отдельных батальонов боевых
танков – bataillon des chars de combat (BCC): 8-го, 15-го, 28-го и 37-го. Каждый батальон состоял из взвода управления и
трех рот трехвзводного состава, по три машины в каждом взводе.
Все
танки, построенные по первому контракту, попали в 510-й танковый полк (15-й
батальон), базировавшийся в Нанси. Машины получили имена собственные в честь
французских городов, провинций и заморских владений.
1 мая 1937 года последовал второй заказ под
номером 61980 D/P. Этим контрактом также предусматривалось изготовление 35
танков. Заказ распределили между 4 фирмами: Renault - 16 танков, FCM - 9, FAMH
-5, Schneider - 5 штук. Замечательно, что к серийному производству танков В1 bis были привлечены предприятия, которые в 1920-е начинали разработку
темы char de batalle. 27 апреля 1938 года был сдан первый танк по новому контракту,
получивший номер 236 и имя собственное Glorieux. Последняя машина серии, с
номером 270 и именем собственным Elephant (позже переименована в Typhoon),
покинула сборочный цех 26 марта 1939 года. Все машины
этой серии поступили на вооружение 508-го танкового полка (8-й батальон) и
получили названия в честь кораблей французского флота. (Рис.11)

Рис.11 - Танк №264 Simoin в ходе
испытаний на преодоление препятствий, 1939 год.
1 февраля 1938 года был оформлен третий контракт под
номером 71780 D/P. Количество танков в нем выросло до 70 (№№271-345) то есть,
планировалось оснастить сразу два танковых полка/батальона. Танки третьей серии
также строились на четырех предприятиях: фирма Renault построила 32 B1 bis
третьей серии, FAMH — 14, FCM — 18 шт. и Schneider — 6 машин (перегруженная
заказами фирма Schneider была вынуждена отказаться от части своей доли, вместо
десяти танков там построили шесть, по две недостающие машины выполнили Renault
и FAMH). Для ускорения строительства танков В1 bis французское командование отменило заказы на выпуск двухсот танков FCM 36,
чтобы это предприятие смогло сосредоточиться на выпуске Char B1 bis. Первый танк по
третьему контракту с серийным номером 271 и именем собственным Alger был сдан 9
января 1939 года, ещё до завершения предыдущего контракта №61980 D/P, последняя
машина была сдана 10 октября, спустя месяц после начала Второй мировой войны. Из
70 танков третей серии к 21 августа 1939 года было сдано 45 машин, причём в
войска поступило ещё меньше. Танки первой половины
контракта (№№271-305) попали в 512-й танковый полк (28-ой батальон), где
получили имена собственные в честь французских колоний. Танки второй половины
контракта (№№306-345) выпускались еще и в 1940г., назывались в честь
французских коммун и рек. По одной версии, машины второй половины контракта
направлялись в 41 батальон. По другой версии, часть танков второй половины
контракта (например, №306 Seine) поступали в 37-ой батальон на замену танков
В1. Встречается фото, танка №343 Pommard,
под фото указано, что танк построен в начале 1940г., а воевал в составе 49-го
батальона. (Рис.12)

Кажется, 28
сентября 1938г. оформили четвертый контракт на 35 танков. За период с ноября
1938г. по январь 1940г. машины были построены на пяти предприятиях: Schneider – 3 танка, Renault – 7, FCM – 4 машины, FAMH – 6 штук,
еще 15 танков построили на мощностях нового подрядчика – компании AMX (завод
находился в г. Сартори), с ноября 1939 года освоившей выпуск танков B1 bis.
(Рис.13)

Рис.13 - Производство
танков B1 bis на заводе AMX, весна 1940 года.
Следующий шестой
контракт, № 98105 D/P от 10 июля 1939 года на 35 танков, распределился
следующим образом: Renault получила девять машин, Schneider — три, FAMH —
шесть, FCM — пять и AMX – 12 машин. В целом его удалось выполнить за март —
апрель 1940г. Танки получили номера 411–445 и были названы в честь французских
военачальников. (Рис.14)

Рис.14 - Танк
с номером 433 и именем собственным Massena, входил в состав 348 CACC.
Фото 28 мая 1940г., район Абвиля.
Из некоторых
источников следует, что к марту 1939г. было выпущено 90 танков В1 bis. К
моменту объявления мобилизации, 2 сентября 1939 года французская армия
располагала четырьмя батальонами танков типа В1: 8, 15 (сформирован в марте
1938г.), 28 и 37-м (сформирован в июне-июле 1937г., имел танки В1 и В1 bis).
26 сентября 1939г. заключили первый контракт
военного времени (по счету седьмой) № 98208 D/P на производство 70 танков B1 bis. На долю Renault и AMX
пришлось по 18 машин, Scheider - 6, FAMH и FCM по 14 штук - исполнение
контракта началось в апреле 1940г.
Уже
на следующий день после появления седьмого контракта на танки B1 bis, 27 сентября 1939г., была утверждена
производственная программа военного периода, которая предусматривала
выпуск четырёхсот танков Char B1 bis. В дальнейших планах была и вторая
часть этой программы, которая предусматривала выпуск ещё 418 танков. Таким
образом, производственный заказ мог увеличится еще на 818 танков B1 bis. В
случае полного выполнения военной программы танки B1 bis могли бы получить 33
батальона. Реально в период с апреля до 15 июня 1940г.
фирма AMX построила 14 танков B1 bis, фирма Renault – 37 шт., Schneider – 14
танков данного типа, FAMH — 37, а FCM — 19.
Пишут,
что последние выпущенные машины из-за производственных проблем подчас не имели
башен. (Рис.15)

Рис.15 – Танк № 505,
отправленный в бой без башни. Июнь 1940 года.
На последней стадии изготовления начался
разнобой с присваиваемыми машинам номерами. Если на Renault и частично на FAMH
первоначальная система нумерации сохранялась, то танки AMX имели номера 736–749
(Рис.16), танки Schneider — 856–861, а танки FCM — 876–878.

Рис.16 - Танк №738 Roland
из состава 352 CACC, одна из последних машин, собранных на заводе AMX.
Большинство машин получило имена
французских полководцев, но были и машины, которые назывались в честь сражений
либо повторяли имена танков, выпущенных ранее. Такое практиковалось в 37 BCC,
где имелись танки 449 Belfort II, 452 Verdun II, 453 Bretagne II. Построенные
весной 1940г. машины шли не столько на формирование новых частей, сколько на
восполнение понесённых потерь.
В декабре 1939г.
началось формирование кирасирских (танковых или бронетанковых) дивизий DCR – в
некоторых источниках пишут, что впервые решение о формировании 2-х кирасирских
дивизий появилось еще в 1936г. К 16 января
1940 года были сформированы 1-я и 2-я бронетанковые дивизии, 20 марта – 3-я и
15 мая—4-я. В 1-ю DCR включили 28-й
и 37-й батальоны (последний имел на вооружении и танки ранней модификации В1),
во 2-ю DCR вошли 8-й и 15-й батальоны. В состав 3-й дивизии вошли 41-й и 49-й
батальоны, в состав 4-ой дивизии – 46-й и 47-й батальоны.
Таблица – Списочный состав 8,15, 41, 49 ВСС в мае
1940г.
|
8-ой ВСС на 10-20 мая 1940г. |
|
Машина командира батальона - № 402
Villers-Bretonneux («Виллер-Бретоннье»), до 15 мая Взвод управления: № 239 Impetieux
("Стремительный"), с 15 мая машина командира батальона № 245 Luneville
("Люнвиль") № 246 Temeraire
("Отважный") 1-я рота: машина командира роты
№ 244 Audacieux ("Дерзкий")
1– й взвод № 253 Tromblon
("Тромблон") № 220 Paris
("Париж") № 247 Redoutable
("Грозный")
2– й взвод № 255 Corsaire
("Корсар") № 226 Toulouse
("Тулуза") № 243 Intrepide
("Неустрашимый")
3– й взвод № 260 Ouragan
("Ураган") № 222 Rouen
("Руан") № 232 Amiens
("Амьен") 2-я рота: машина командира роты№
263 Sirocco ("Сирокко")
1– й взвод № 233 Lille
("Лилль") № 219 Ouessant
("Уэссан") № 229 Brest
("Брест")
2– й взвод № 211 Cochinchine
("Кошиншин") № 269 Tonnerre
("Гром") № 270 Typhon
("Тайфун")
3– й взвод № 268 Eclair
("Молния") № 250 Adroit
("Ловкий") № 249 Rapide
("Скорый") 3-я рота: машина командира роты
№ 256 Pirate ("Пират")
1– й взвод № 259 Terrible
("Ужасный") № 240 Indomptable
("Неукротимый") № 236 Glorieux
("Гордый")
2– й взвод № 238 Hardi
("Смелый") № 237 Heros
("Герой") № 261 Trombe
("Смерч")
3– й взвод № 242 Victorieux
("Победоносный") № 248 Courageux
("Мужественный") № 241 Triomphant
("Торжественный") |
|
15-й ВСС на 10-20 мая 1940г. |
|
Машина командира батальона – № 234 Marseille
(«Марсель») Взвод управления: № 233 Nice
("Ницца") № 207 Martinique
("Мартиника") № 201 France
("Франс") 1-я рота: машина командира роты
№ 230 Rennes ("Ренн")
1– й взвод № 225 Grenoble
("Гренобль") № 209 Senegal
("Сенегал") № 210 Tonkin
("Тонкин")
2– й взвод № 221 Lyon
("Лион") № 235 Toulon
("Тулон") № 257 Bourrasque
("Шквал")
3– й взвод № 208 Guadeloupe
("Гваделупа") № 227 Bordeaux
("Бордо") № 267 Tempete
("Буря") 2-я рота: машина командира роты
№ 212 Cambodge ("Камбоджа")
1– й взвод № 214 Corse
("Корсика") № 252 Flamberge
("Фламберж") № 258 Foudroyant
("Молниеносный")
2– й взвод № 213 Aquitanie
("Аквитания") № 216 Anjou
("Анжу") № 202 Algerie
("Алжир")
3– й взвод № 206 Madagascar
("Мадагаскар") № 254 Bombarde
("Бомбард") № 217 Cantal
("Канталь") 3-я рота: машина командира роты
№ 265 Mistral ("Мистраль")
1– й взвод № 218 Vosges
("Восж") № 228 Nantes
("Нант") № 262 Tramontane
("Трамонтань")
2– й взвод № 215 Savoie
("Савойя") № 224 Besancon("Безансон") № 204 Tunisie
("Тунис")
3– й взвод № 203 Магос
("Марокко") № 205 Indochine
("Индокитай") № 266 Tornade
("Торнадо") |
|
41-й ВСС на 7 мая 1940г. |
|
Машина командира батальона – № 366 Graves («Грав») Рота управления: № 333 Vienne
("Вена") № 342 Corton
("Кортон") № 326 Dordogne
("Дордонь") 1-я рота: машина командира роты
№ 377 Vauquois ("Вокуа")
1– й взвод № 327 Lot
("Ло") № 352 Vouvray
("Вуврэ") № 313 Escaut
("Эско")
2– й взвод № 344 Volnay
("Вольна") № 328 Tarn
("Тарн") № 311 Rhin
("Ран") 3– й взвод № 345 Beaune ("Бон") № 314 Sambre ("Самбр") № 341 Vougeot ("Вужо") 2-я рота: машина командира роты№
375 Chateauneuf-du-Pape ("Шатонев-дю– Пап")
1– й взвод № 339 Aisne
("Эсн") № 369 Corbieres
("Корбьер") № 336 Yonne
("Ен")
2– й взвод № 322 Durance
("Дюране") № 337 Eure
("Ер") № 350 Fleurie
("Флери")
3-й взвод № 320 Drome
("Дром") № 370 Pinard
("Пинар") № 374 Villers-Marmery
("Виллер-Мармери") 3-я рота: машина командира роты
№ 340 Somme ("Сомма")
1– й взвод № 315 Meurthe
("Мерт") № 346 Meursault
("Мерсо") № 316 Moselle
("Мозель")
2– й взвод № 365 Barsac ("Барсак") № 372 Vertus
("Вертю") № 373 Trepaie
("Трепа")
3– й взвод № 351 Muscadet
("Мюскаде") № 317 Doubs
("Дуб") № 338 Charente
("Шарент") |
|
49-й ВСС на 10 мая 1940г. |
|
Машина командира батальона – № 419 Bayard
(«Байярд») Взвод управления: № 386 Ait-Souala
("Аи-Суала") № 413 Saint-Peray
("Сен-Пере") № 388 Arlay
("Арле"), до 10 мая машина командира 5-й полубригады 1-я рота: машина командира роты №
376 Tahure ("Таюр")
1 й взвод № 395 Banyuls
("Баниюль") № 354 Chinon
("Шинон") № 381 Iroulegny
("Ирулюги")
2– й взвод № 389 Montbazillac
("Монбазилак") № 394 Pauillac
("Пойяк")
3– й взвод № 357 Ribeauville
("Рибовий") № 356 Ricquewihr
("Рикевир") 2-я рота: машина командира роты №
387 Beni-Snassen ("Бени-Снасен")
1– й взвод № 349 Chablis
("Шабли") № 378 Chambertin
("Шамбертен") № 393 Frontighan
("Фронтиньян")
2– й взвод № 347 Mercurey
("Меркюри") № 343 Pommard ("Поммар") № 348 Pouilly
("Пуйи")
3– й взвод № 384 Staoueli
("Стауэли") № 397 Tavel
("Тавэль") № 360 Traminer
("Траминэ") 3-я рота: машина командира роты
№ 382 Toulal ("Тулял")
1– й взвод № 353 Bouzy
("Бузи") № 362 Cotes-du-Rhone
("Котэ-дю-Рон") № 368 Gaillac
("Гайяк") 2– й взвод № 416 Hautvillers
("Отвийер") № 396 Hermitage
("Эрмитаж") № 379 Maury
("Мори") 3– й взвод № 367 Medoc
("Медок") № 361 Silvaner
("Сильванэ") № 385 Thiaucourt
("Тиокур") 10 мая 1940 года в состав 28-го танкового батальона были
переданы танки: № 411 Armagnac
("Арманьяк") № 355 Bourgueil
("Бургей") № 415 Quincy
("Кинси") за батальоном числилась машина № 380 Malmaison
("Мальмезон"), переданная из 47-го танкового батальона. |
Кроме того, с
конца мая – в июне 1940г., в разгар боевых действий, только что изготовленные
на заводах танки включали в сформированные на скорую руку отдельные танковые
роты (compagnie autonomes des chars de combat, CACC). Известно, что
таким способом были созданы четыре роты тяжелых танков В1bis: 348-я, 349-я, 352-я, 353-я. В каждую отдельную роту включали по 10
танков. Еще одна отдельная рота тяжелых танков 347еСАСС комплектовалась 12-ю или 14-ю
отремонтированными или модернизированными танками В1.
Танки В1 и В1 bis приняли самое деятельное участие в борьбе за Францию в составе 4-х
кирасирских (танковых) дивизий в мае-июне 1940г. и позже состояли на вооружении
вермахта до конца WWII.
1-я танковая дивизия, приданная для
поддержки армейскому корпусу, была брошена для парирования немецкого удара
западнее Намюра. 15 мая 1940г. в 8:30 утра возле города Флавиона немецкое ударное
соединение 5-й и 7-й танковых дивизий, состоявшее из 219 танков (в основном
лёгких Pz.Kpfw.I, Pz.Kpfw.II, Pz. Kpfw.38(t) а также средних Pz.Kpfw. III/IV),
столкнулось с двадцатью шестью В1bis 28-го батальона 1-й бронетанковой дивизии
французской армии. Большая часть танков, потерянных французами в этом бою, была
брошена из-за выхода из строя трансмиссии, расхода горючего и ранения экипажей
осколками брони, откалывавшейся внутри танков при попадании в них
крупнокалиберных снарядов. (Рис.17)

Рис.415 – Слева танк из
37-го ВСС, дверь в борту открыта, значит, экипаж покинул машину.
Под Флавионом вермахт потерял сожжёнными и
подбитыми до 100 танков. Потери французов также были значительными. Из 154
танков всех моделей, они потеряли 65, а еще 10 машин были отправлены в ремонт.
Однако вскоре 1 французская танковая дивизия попала в окружение и полностью
погибла.
Три других кирасирских дивизии участвовали
в кампании до самого финала трагической битвы за Францию.
Танки 2-й и 3-й французских танковых
дивизий были «разобраны» между полевыми частями для поддержки их атак и увязли
в позиционных боях.
В первые недели боев 2-я бронетанковая дивизия практически не существовала в качестве единого войскового соединения. Танки бросались в бой отдельными подразделениями, по мере прибытия в район боевых действий. Так, 15 мая 1940 года танки В1 bis 8-го батальона получили задачу отбросить немецкие танки, прорвавшиеся в районе Марль-Моккорне. К 11 часам утра 16 мая после ночного марша французские танки остались без горючего. К 13.30 они прибыли в Берларкур, где удалось заправиться только к 17.30, так как на все машины нашелся всего... один ручной насос. Ночью машины двинулись дальше, но, не имея карт, потеряли и дорогу, и друг друга. Утром 17 мая несколько танков наткнулись на немецкие войска и были подбиты, а несколько машин экипажам пришлось бросить из-за отсутствия горючего. (Рис.18)
Рис.18 - В1
bis из состава 15-го танкового батальона 2-й танковой дивизии. Район Монкорне,
17 мая 1940 г.
В полдень следующего дня два В I bis (№ 204 «Тунизи» и № 265 «Мистраль») вошли в Ландреси, где неожиданно встретили стоявшую на отдыхе немецкую часть. В результате скоротечного боя два французских танка смогли уничтожить несколько грузовиков, бронеавтомобилей и орудий и отойти к Орсу. Во время этого столкновения «Тунизи» получил восемь попаданий 75-мм снарядов и 27 попаданий 37 – 50-мм снарядов, но остался в строю. Вечером того же дня взвод В1 bis (№205 «Индошин», №215 «Савой» и № 223 «Безансон» направили на патрулирование в район Базуэля. На южной окраине селения Буа-а-Эвек танки попали под огонь своей же артиллерии, принявшей их за вражеские машины. В результате «Индошин» был разбит, а «Савой» и «Безансон» сильно повреждены и на следующий день брошены. Одновременно танки В1 bis 15-го батальона 2-й бронетанковой дивизии использовались для охраны мостов через реки и каналы и патрулирования. В ходе этих действий часть машин поломалась и была брошена, часть уничтожена артиллерией и авиацией немцев. В итоге к 20 мая 1940 года дивизия из 68 В1 bis потеряла 55 машин; восемь осталось на ходу, пять находились в ремонте.
Танки В1 bis 41-го батальона 3-ей кирасирской (бронетанковой дивизии) 16 мая 1940 года получили приказ атаковать немецкие позиции у г. Стонн. Позже командир батальона капитан Малагути, возглавлявший атаку, вспоминал: «Эта атака была проведена в наилучших условиях, как на маневрах. Она велась быстро, и минут за двадцать, уничтожив множество немецких пехотинцев – очень хороших бойцов, мы захватили Стони». На северо-западной окраине города танк капитана неожиданно наткнулся на немецкую танковую колонну, стоявшую на шоссе. Не задумываясь, он открыл огонь с дистанции 30 м. В это же время с другой стороны шоссе подошел В1 bis капитана Биллота (Пьера Бийота). Танкистам в течение 15 минут удалось уничтожить 13 немецких танков (два Pz.IV и 11 Pz.III). По другой версии, танк В1 bis капитана Пьера Бийота в одиночку в бою за городок Стони подбил 13 вражеских танков (2 Pz Kpfw IV и 11 Pz Kpfw III), а также два орудия. После боя на его броне насчитали до 150 попаданий снарядов, ни один из которых не смог нанести ему значительных повреждений. (Рис.19)

Рис.19 - Танк B1 bis №382 49-го танкового батальона 3-й кирасирской
дивизии – памятник в н/п Стони, на месте боя экипажа капитана Пьера Бийота.
В последующих боях 23 мая – 5 июня 3-я бронетанковая дивизия сумела остановить немцев, наступавших от Седана. При этом потери французов в танках составили более 50% парка. Оставшиеся в строю 36 танков В1 bis свели в один батальон. К 12 июня он насчитывал в своем составе всего 15 боевых машин. В этот день их бросили в бой в районе Шалон-на–Марне, для поддержки частей 14-й пехотной дивизии. Командир батальона капитан Малагути впоследствии предоставил подробный отчет об этом бое: «Эти 15 танков “В” оставались одни в течение 7 часов, далеко от всех... В 19 часов, когда группа пыталась пробиться на юг к Ваденей, она попала в настоящую артиллерийскую западню (более 50 орудий и танков на километр фронта) и после 45 минут боя была уничтожена, большая часть танков разбита, а сильно поредевшие экипажи взяты в плен». (Рис.20)



Пишут, что 12
июня на мосту Поньи был уничтожен последний танк В1 bis 3-й дивизии (№387
"Beni Snassen"), подбивший в этом бою четыре немецких танка. Однако
встречается фото танка №350 «Флёри» (Fleurie) 41-го ВСС,
входившего в состав 3-й кирасирской дивизии, из подписи к этой фотографии можно
понять, что танк №350 мог быть уничтожен
в бою у Монсюзена 15 июня 1940г.
(Рис.21, Рис.22)

Рис.21 - Экипаж B1bis №350 «Флёри» (Fleurie) перед своей машиной.
В центре - сержант-шеф Жак Дюмай (Jacques Dumay) (убит 15 июня 1940 года у
Монсюзена). Справа - адьютант (прапорщик/старшина) Аджудан Левассер (Levasseur)
(убит 12 июня 1940 года у Мурмелона).

Рис.22 - Местные жители хоронят погибших французских танкистов. На заднем плане – подбитые танки В1 bis. 1940г.
4-я кирасирская дивизия, которой командовал де
Голль, из 150-ти танков располагала 30-ю (по другим данным, 50-60-ю)
машинами В1 bis (входили в 46-й и 47-й батальоны). Дивизия действовала как
единый организм. Считается, что контрудар 4-ой дивизии 28 мая по танковому клину Гудериана был наиболее
чувствителен. За три дня боев французам удалось продвинуться на 20 или на 14 км
– немцы потеряли три четверти своего абвильского плацдарма, но частный успех
4-ой дивизии не изменил ход кампании. После сражения в строю 4-ой дивизии
сохранилось 34 исправных танка разных типов. Некоторые авторы считают,
что де Голль изменил свое отношение к танкам типа В1 после проверки их боем
(ранее он выступал сторонником танков типа D2), да и для двухметрового роста де Голля танк В1 bis походил
лучше. Впрочем, не исключено, что изменившееся мнение де Голля о танках типа В1
есть фейковая информация.
Танки
Char B1 bis, несомненно, являлись самыми мощными
серийными танками в мире на начало WWII. (Рис.23)






Рис.23 – В1 bis.
Такую репутацию машины этого типа заслужили за счет
толстой брони (60 мм) и мощного вооружения (75-мм и 47-мм орудия). Однако
машины имели и серьезные отрицательные стороны – медлительность, большие
размеры и нелепое распределение функций членов экипажа. Начнем с последнего - роли членов экипажа.
Командир, помимо своих естественных обязанностей, наводил, заряжал и стрелял из
47-мм орудия, а водитель стрелял из 75-мм орудия. Толстая броня на практике
сработала лишь отчасти. Немцы успешно применяли против медленных крупных
тяжелобронированных танков 88-мм зенитные пушки Flak.88, высокая
начальная скорость снарядов которых позволяла пробивать практически любую
танковую броню того времени. Немцы старались «выводить» тяжелые французские
танки на позиции своих зенитных орудий, где неманевренные машины
просто расстреливались с дальних дистанций. (Рис.24)

Медленные машины
не успевали парировать скоротечные удары немецких танковых частей, которые
предпочитали не вступать в открытое противостояние с тяжелыми танками французов,
оставляя их на расправу артиллерии и авиации. Авиация германцев быстро
обнаруживала французские тяжелые танки и автотехнику, обеспечивавшую танки
горючим, запчастями и боепитанием, подвергала колонны обеспечения
сокрушительным бомбовым ударам. Значительная часть танков В1 bis была брошена или уничтожена собственными экипажами из-за
невозможности их починить, из-за нехватки горючего или отсутствия снарядов.
Надо также вспомнить, что запас хода по шоссе танков типа В1 варьировал от 180
до 200 км. Процент потерь по механическим причинам также оказался высоким. Т.о.
машины типа В1 bis оказались не
приспособлены к реалиям маневренной войны. Из 342 машин порядка 200 танков было
потеряно французами в боевых условиях. (Рис.25)

Рис.25
- Подбитый В1 bis, 30.05/40, перед Абвилем.
В 1944г. союзники захватили во Франции
некоторое количество танков В1bis, которые передали силам «Свободной
Франции» (или «Сражающейся Франции»). Чтобы отличать свою технику от немецкой,
танкисты «Свободной Франции» красили машины в оливково-зелёный цвет и наносили
на танки такие же белые звёзды, как на американской и английской технике. Так
как французская милиция (ополчение) была включена в состав армии де Голля, то
на некоторых танках появились буквы FFI (Forces Françaises de
l'Intérieur – французские внутренние силы). (Рис.26)

Рис.26 - Танк B1
bis с маркировкой французского ополчения.
В
октябре 1944 года эти танки вошли в 13-й драгунский полк (regiment de dragons, сформирован 7 октября). В составе этого
полка имелся один эскадрон (2-ой эскадрон) танков В1 bis численностью 19 машин,
на вооружении которого были как линейные танки, так и немецкие огнемётные, и
один учебный танк без башни. (Рис.27)

По
одной информации, вплоть до апреля 1945г. полк находился на месте базирования возле
Орлеана, а 2-го апреля полк выдвинулся в сторону Руайана. Там его танки приняли
участие в штурме немецких укреплений, располагавшихся в Cен-Жорж-де-Дидон. Последней
операцией стала зачистка порта Ля-Рошель 8 мая 1945 года. По другой информации,
13 драгунский полк принимал участие в ликвидации группировки немецких войск в
районе Руайана в январе – апреле 1945 года. Танки В1 bis участвовали в штурме
немецких полевых укреплений, скорее, в качестве САУ, расстреливая их из 75-мм
орудий с безопасного расстояния. В бои с новейшей немецкой бронетанковой
техникой, по сравнению с которой B1
bis устарел, французские танкисты не вступали. (Рис.28)

Рис.28 – Танк В1 bis из состава 2-го эскадрона 13 драгунского полка, май 1945г.
Танки В1 bis в руках немцев.






Пишут, что в ходе ремонта на танки типа В1
устанавливались командирские башенки немецкого образца (по другой версии,
командирские башенки демонтировались, их заменяли люком с двустворчатой
крышкой) и свои рации. (Рис.30)


Танки В1 bis (и В1) получили у немцев обозначение Panzerkampfwagen B1 Bis 740
(f), но обычно их обозначали как Pz.Kpfw.B2
740(f). Pz.Kpfw.B2 740(f) использовались
в вермахте до конца войны, как правило, в
войсках, расположенных на территории Франции. В феврале 1945 года здесь еще
находилось около 40 таких танков. (Рис.31)

Тактико-технические особенности танков Pz.Kpfw. B2
(небольшая скорость и запас хода, малый по сравнению с немецкими машинами
моторесурс, техническая ненадежность) не позволяли французским тяжеловесам
органично вписаться в структуру немецкой танковой дивизии, т.е. эти машины не
могли быть машинами «первой линии» и годились лишь для комплектования частей на
территории Франции. В марте 1941г. Гитлер
на совещании с представителями Daimler-Benz поднял вопрос о создании на базе машин типа В1
огнеметных танков. 11 марта состоялось еще одно совещание, в котором принимали
участие ведущий конструктор Daimler-Benz Мённинг и начальник 6-го отдела
Департамента вооружений полковник Фихтнер. Темой обсуждения стали варианты
переделки Pz.Kpfw. B2 в огнеметный танк. Первый вариант предусматривал демонтаж
из башни 47-мм пушки SA 35 и установку вместо нее огнемета. 75-мм пушка SA 35,
находящаяся в корпусе, заменялась на немецкую пушку 7.5 cm KwK 37 с
горизонтальными углами наводки по 10 градусов влево и вправо. Второй вариант
предусматривал замену 75-мм пушки в корпусе на огнеметную установку с углами
наводки 30 градусов во все стороны. Первый вариант оформили в виде эскизного
проекта, а второй изготовили в виде макета. 3 апреля 1941 года оба варианта
показали Гитлеру, он выбрал размещение огнемета в корпусе. В качестве
исполнителя была определена фирма Wegmann & Co. (Кассель), уже имевшая опыт
переделки танков в огнеметные.
На танк ставили огнеметы той же системы, что применяли на танках Pz.ll (F). Огнемет, работавший на сжатом азоте, располагался внутри корпуса, на месте снятой 75-мм пушки. Огнемет имел сектор ведения огня по 90 градусов влево и вправо – по другим сведениям, не было возможности наведения огнемета вбок. В верхнем лобовом листе прорезали небольшой смотровой прибор. Французскую радиостанцию заменили на немецкую, при этом на верхнем лобовом листе устанавливалась штыревая антенна. Внутри корпуса появился бак с огнесмесью емкостью 160 литров – по другим сведениям, внутри корпуса появились два бака огнесмеси на 500 л каждый (-?). В мае был готов первый огнеметный танк, получивший обозначение Pz.Kpfw. B2 (Flamm) – в литературе также встречается Flammenwerferpanzer B2(f), Flamm.Pz.B2 740 (f) или В2 (FI). (Рис.32)

Рис.32 - Первый
вариант огнеметного танка, разработанный фирмой Wegmann.

Рис.33 – Огнеметная установка от фирмы Köbe, эта установка не обеспечивала возможность наводки огнемета по горизонту.


К 20 июня 1941г.
формирование 102-го батальона огнеметных танков было завершено, и подразделение
прибыло на Восточный фронт. 23 июня 102-й батальон был подчинен штабу 17-й
армии, дивизии которой штурмовали Перемышльский укрепленный район. 24 июня
1941 года батальон поддерживал наступление 24-й пехотной дивизии, которая
штурмовала Рава-Русский УР в районе Дахани (к северо-западу от Верхрата). Батальону достаточно быстро удалось вывести из строя находившийся
там ДОТ, выжившие защитники отошли. На следующий день батальон переподчинили
296-й пехотной дивизии, которая штурмовала опорный пункт Велки Дзял, что
западнее Дахани. Ни 26, ни 27, ни 28 июня немцам не удалось штурмом взять
опорный пункт РККА в Велки Дзял. Отмечается, что в эти дни танки типа В1 начали
преследовать технические проблемы. К 29 июня немцы подтянули в район атаки 88-мм
зенитные орудия Flak 18. 29 июня при участии огнеметных танков начался новый
штурм советских дотов. Донесение командира 2-го батальона 520-го немецкого
пехотного полка позволяет восстановить картину боя. «Вечером 28 июня 102-й
батальон огнеметных танков вышел на указанные исходные позиции. На звук
танковых двигателей противник открыл огонь из пушек и пулеметов, но потерь не
было. С задержкой, вызванной густым туманом, в 5.55 29 июня 8,8 cm Flak открыли
огонь прямой наводкой по амбразурам дотов. Зенитчики вели огонь до 7.04, когда
большинство амбразур было поражено и замолчало. По зеленой ракете 102-й
батальон огнеметных танков перешел в атаку в 7.05. Инженерные подразделения
сопровождали танки. Их задачей было установить фугасные заряды под
оборонительные укрепления противника. Когда некоторые доты открыли огонь,
саперы были вынуждены укрыться в противотанковом рве. 88-мм зенитки и другие
виды тяжелого вооружения открыли ответный огонь. Саперы смогли достичь
назначенных целей, заложить и подорвать фугасные заряды. Доты были сильно
повреждены огнем 88-мм орудий и могли вести огонь только периодически.
Огнеметные ганки смогли приблизиться к дотам почти вплотную. Защитники дотов
оказывали отчаянное сопротивление. Два огнеметных танка были подбиты 76-мм
пушкой из дота. Оба танка сгорели (- один из них B1 №103), но экипажи успели
покинуть подбитые машины. Огнеметным танкам так и не удалось поразить доты.
Горючая смесь не могла проникнуть сквозь шаровые установки внутрь дота.
Защитники укреплений продолжали вести огонь». 30 июня 102-й батальон вернули в
непосредственное подчинение штаба 17-й армии. Огнеметные танки и прочие танки
типа В1 102-го батальона двинулись было на восток (Рис.35), но постоянно
возникавшие технические проблемы заставили уже, по одним сведениям, 17 июля, по
другим – 27 июля расформировать 102-ой батальон, а танки типа В1 огнеметные и
линейные отправить на ремонт во Францию на завод Renault в Булонь-Бийанкуре.

Рис.35 -
Танки 102-го батальона на марше, район Львова, июль 1941г.
Возможно, вновь в эксплуатацию бывшие танки 102-го
батальона не вводились.
Пишут, что с середины мая 1941г.
совместными усилиями фирм Daimler-Benz, Wegmann и Köbe (Feuerwehrgerätefabrik
Hermann Köbe из Луккенвальде, специализация фирмы – противопожарное
оборудование) начались работы по
созданию более основательного огнеметного танка на базе машин типа В1. 20 мая руководство Управления вооружений и 6-го отдела Департамента
вооружений провели совещание, на котором поднимался вопрос об огнеметном танке
улучшенной конструкции. Размещение бака с огнесмесью внутри танка не вызывало
энтузиазма у военных, как и то, что на танке первой серии огнеметчик либо не
имел обзора, либо имел слишком ограниченный обзор. Общее
руководство над проектом
осуществляла фирма Daimler-Benz, там же
разработали новую рубку и внешний бак. Огнеметную установку улучшенной конструкции делали
на Köbe, а Wegmann отвечала за внутренне оборудование. В качестве
изготовителя рубки и других броневых элементов была выбрана фирма Deutsche
Edelstahlwerke AG (DEW). (Рис.36)


Рис.36 – Схема огнеметного танка Renault B1 bis Flammpanzer.
Отличительными внешними элементами нового огнеметного
танка на базе B1 bis выступили специальная рубка для огнеметчика (Рис.37), кормовой бак
прямоугольной формы для огнесмеси (Рис.38) и специальная установка под огнемет
(Рис.39).


Внизу прототип нового огнеметного танка, рубка огнеметчика уже
есть, а установка еще огнемета прежняя.


Рис.38 – Кормовой бак для огнесмеси.


Фирмой Köbe был предложен танковый огнемет, действовавший от двигателя J10
мощностью 2 л.с. Огнемёт имел дальность стрельбы до 45 м, запас горючей смеси
позволял производить 200 выстрелов. Новая
установка огнемета позволяла наводить его как по вертикали, так и по горизонтали.
(Рис.40)


Рис.40 – Вверху огнеметный танк
на испытаниях.
В результате переделок масса танка выросла на 3 тонны.
Предполагалось, что DEW успеет изготовить
новые броневые компоненты (рубку огнеметчика и кормовой бак для огнесмеси) еще
в мае-июне, но запуск задержался, что стало причиной появления упрощенных
версий огнеметного танка, которые пошли на вооружение 102-го батальона.
Пишут, что серийно танки Flammenwerferpanzer B2(f) (Рис.41) производились на фирме Wegmann, однако, судя по переписке, в Касселе переделали (или находились в переделке 17 машин Pz.Kpfw. B2).

Рис.41 - Серийный огнеметный танк В2 (FI) из
состава 213-го танкового батальона.
Вместе с другими танками Pz.Kpfw.B2 740(f) огнеметные В2 состояли на вооружении довольно многих частей немецкой армии.
Первым подразделением, которое получило модернизированные огнеметные танки, стала 223-я рота трофейных танков (Panzer-Beute-Kompanie 223), сформированная 6 февраля 1942 года. В ее составе находилось 5 линейных танков и 12 огнеметных. В мае 1942 года роту отправили в Крым, где она была придана 22-й танковой дивизии. (Рис.42)

Рис.42 – Огнеметный
танк В2 (FI) в Крыму, 1942г.
В марте-апреле 1942г. на британские Нормандские острова был высажен 213-й немецкий танковый батальон. На о. Джерси было доставлено 17 танков Pz. B2 740(f), а на о. Гернси – 19, в том числе по пять огнеметных машин на каждый остров.
По состоянию на 1 марта 1943 года в войсках группы «Запад» имелось 52 линейных танка типа В1 bis, а также 44 огнеметных на этой же базе. Больше всего их было в 1-й танковой дивизии (13 линейных и 10 огнеметных), находившейся на переформировании, а также в 213-м танковом батальоне (26 линейных и 10 огнеметных). К концу мая 10 линейных и 24 огнеметных танка передали в 100-ю танковую бригаду. Еще 17 линейных танков находились в дивизии СС «Принц Ойген». Туда же позже попало и некоторое количество огнеметных машин.
По состоянию на 31 мая 1943 года в 223-м танковом батальоне имелось 16 танков В1 bis (из них 12 – огнеметных В2 (FI)); в 100-й танковой бригаде – 34 (24); в 213-м танковом батальоне – 36 (10); в горнострелковой дивизии СС «Принц Евгений» – 17 В1 bis и В2 (FI).
К середине весны 1944 года состав частей,
на вооружении которых находились Pz.Kpfw. B2 и огнеметные танки на их базе,
несколько изменился. В апреле 1944 года на базе 224-й танковой роты
сформировали танковую огнеметную роту, куда попало 17 танков. 213-й танковый
батальон находился на Нормандских островах. Также Pz.Kpfw. B2 сохранились на вооружении
100-й танковой бригады, отдельные машины, включая учебные, находились в
гарнизоне Парижа. В таком составе бывшие французские танки встретили высадку в
Нормандии. (Рис.43)

Рис.43 – Огнеметные В2 (FI), брошенные немцами близ Парижа, лето
1944г.
Осенью 1944г. 224-я танковая рота (Panzer-Kompanie 224) участвовала в боях за Нидерланды в районе Остербека и Арнема (Oosterbeek and Arhnem). 20 сентября произошел крупный бой немецких огнеметных танков с 26-м противотанковым взводом 1-го пограничного полка 1-й британской воздушно-десантной дивизии (No. 26 Anti-Tank Platoon, 1st Border Regiment, 1st Airborne Division). В ходе боя британские противотанковые орудия (6-pdr anti-tank gun), или даже одно орудие, подбило 6 немецких огнеметных танков PzKpfw B2 (f) Flammpanzer. (Рис.44, Рис.45)




Рис.45 – Подбитые британцами и брошенные немцами огнеметные танки PzKpfw B2 (f) Flammpanzer в районе Oosterbeek and Arhnem, сентябрь 1944г.
К 30 декабря в ее составе все еще находилось 9 Pz.Kpfw. B2 и B2 (F).
Как уже упоминалось выше, последним 8 мая 1945г. капитулировал 213 танковый батальон из состава оккупационных сил на Нормандских островах. В его составе находились как линейные Pz.Kpfw. B2, так и огнеметные B2 (F). (Рис.46)

Рис.46 – Танки 213-го батальона, в одном строю линейные Pz.Kpfw. B2 (В1 bis) и огнеметные B2 (F).
САУ на базе B1 bis.
Немцы переделали 16 танков В1 bis в 105-мм САУ.
Для сопровождения огнеметных танков немцы
решили разработать самоходную гаубицу со 105-мм орудием leFh18/3 (Sf). (Рис.47)

Рис.47 - 105-мм лёгкая гаубица leFh18/3
(Sf).
Это орудие было создано компанией
Rheinmetall-Borsig в 1929 году на основе 105-мм гаубицы образца 1918 года,
стало поступать в войска в 1935 году, и к 1941 году на вооружении вермахта было
более 7000 таких пушек различных модификаций, составлявших основу немецкой
дивизионной артиллерии.
Обсуждение вопроса о создании 105-мм САУ на базе B1 bis специалистами 4-й Департамента (артиллерийского) Управления вооружений сухопутных сил (в этой связи упоминают также 6-го отдел (танковый) Департамента вооружений), вроде бы, состоялось в марте 1941г., но заказ фирме Rheinmetall–Borsig в Дюссельдорфе (к тому моменту один из основных разработчиков самоходной артиллерии) был выдан 28 мая 1941г. Конструкторское бюро Rheinmetall-Borsig в июне подготовило первый опытный образец - 5-сm/е FH 18/3 auf Geschiitzwagen B2(f) или 10.5cm leFH18/3 (Sf) auf Geschutzwagen B-2(f), кратко – 105 leFH18B2. (Рис.48)

Рис.48 - 5-сm/е FH 18/3
auf Geschiitzwagen B2(f).
Шасси В1 bis освободили от 75-мм орудия и башни вместе с подбашенным погоном.
На месте башни из 20-мм бронированных плит установили рубку шестигранной формы
(пишут, что на прототипе она была собрана из обычной конструкционной стали), с
таким расчетом, чтобы экипаж машины мог состоять из 5 человек. Внутри рубки на
специальной тумбе разместилась гаубица leFH 18M, которую спереди прикрыли
большим орудийным щитом, состоявшим из нескольких секций. (Рис.49)


Рис.49 - 10,5 cm leFH 18/3 (Sf.) auf GW B2.
Хорошо видно, что 75-мм орудие в корпусе отсутствует, бойница прикрыта
бронированным листом.
Габариты машины оказались внушительными, её высота достигала 3 м, а длина – 6,5 метра. Масса машины составила 32,5 т. Углы наведения орудия достигали: по вертикали – от −5° до +20°; по горизонтали – ±15°. Возимый боекомплект 42 выстрела. Гаубица имела раздельное гильзовое заряжание. Орудие снабдили средствами наведения – панорамным прицелом Rblf-36 для ведения огня с закрытых позиций и телескопическим прицелом Z.E.34 для стрельбы прямой наводкой. Французские радиостанции ER53, работавшие только на азбуке Морзе, а также ER51 и ER55 заменили на более передовые немецкие радиостанции FuG 5. На испытаниях 307-сильный двигатель разогнал машину до 28 км/ч, запас хода составил 150 км. После испытаний был составлен график производства 10-ти машин во второй половине 1941г. (двумя партиями по 5 единиц), и еще 6-ти – в 1942г. По другой версии, задержка с производством изделия вышла из-за того, что танки В1 bis находились в ведении 6-го Департамента и произошла обычная бюрократическая волокита, связанная с передачей матчасти из одного ведомства в другое, поэтому работы по САУ 105 leFH18B2 начали в конце 1941 года, и выпущенные шестнадцать самоходок покинули заводские цеха в период с января по март 1942 года (5 штук в январе, 5 штук в феврале и 6 штук в марте). Некоторые пишут, что машины производились не в Дюссельдорфе, а на заводе Alkett в Шпандау.
105 leFH18B2 САУ, вопреки первоначальной идее, не попали в батальоны огнеметных танков – их направили на укомплектование 26-й танковой дивизии, сформированной в сентябре 1942 года. Дивизия формировалась в Бельгии из остатков 23-й пехотной дивизии для обороны побережья Ла-Манша. В ее составе организовали 93-й танковый артиллерийский полк, куда входил 3-батарейный дивизион. В каждую батарею попало по 4-ре 10,5 cm leFH 18/3 (Sf.) auf GW B2. Оставшиеся машины оказались вне штата, но также числились в 26-й танковой дивизии. По состоянию на 31 мая 1943 года, 105 leFH18B2 было 15 штук, из них 14 в рабочем состоянии. (Рис.50)



Рис.50 – В рядах вермахта.
В процессе манёвров и полевых испытаний техники выяснилось, что новые САУ переутяжелены, обладают низкой манёвренностью и часто ломаются. В мае 1943 года началось перевооружение 93-го артиллерийского полка на самоходные установки Wespe, САУ 10,5 cm leFH 18/3 (Sf.) auf GW B2 (на тот момент боеспособными были 14 машин) отправили в учебно-тренировочный центр в Гавре. Летом 1943г. осложнилась ситуация в Средиземноморье и 6-го июля 105-мм САУ отправили на Сардинию, где формировали 90-ю панцергренадерскую дивизию. Там 10,5 cm leFH 18/3 (Sf.) auf GW B2 вошли в состав 190-го артиллерийского полка. Некоторые исследователи допускают, что в 1944г. часть САУ могли попасть на Корсику или даже в материковую Италию, под Кассино, однако точных сведений на этот счет нет. Что касается 90-ой танково-гренадерской дивизии, то она была разгромлена между Римом и Болоньей в апреле 1945г.
По сведениям, Андрея Харука, в европейских источниках есть упоминания этих САУ, как участвовавших в сражении за Нормандию в июне 1944 года в составе 200-го батальона штурмовых самоходных орудий. И хотя вполне возможным представляется то, что самоходки до Италии не доехали, а сражались во Франции, полной ясности в этом вопросе нет.
Вспомогательные
машины на базе В1 bis.
Три танка (некоторые пишут: три – пять) В1 bis немцы превратили в учебные платформы для водителей. Для этой
цели с машин снималось вооружение и демонтировалась башня – такой вариант
получил у немцев обозначение Fahrschulpanzer B2 (f). (Рис.51)



Рис.51 - Fahrschulpanzer B2(f).
Внизу - Fahrschulpanzer B2 (f), брошенный в Париже, август 1944 года.
Союзники использовали безбашенную разоруженную базу В1 bis под самоходный катковый минный трал. На освобожденной от немцев территории Франции оставалось большое количество минных полей, заминированных дорог. Работу по теме минного (или противоминного) трала начали на фирме АМХ еще до окончания войны – в апреле 1945г. Окончательно конструкция трехсекционного трала оформилась в сентябре 1945 года. (Рис.52)


Рис.52 - Танк В1 bis, переделанный в противоминный трал.
Одни источники указывают, что минный трал на базе В1 bis был построен в единственном экземпляре, другие – пишут о двух таких машинах. Пишут, что экземпляр минного трала на базе В1 bis сохранился до наших дней – находится в экспозиции танкового музея в Сомюре.

